
Designed for bed storage units to provide easy and reliable longitudinal opening of the mattress and the mattress base.

Designed for daybeds with storage, providing easy and reliable lateral opening of the mattress and the mattress base.

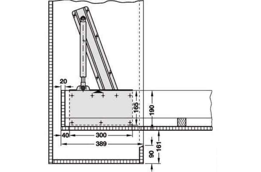
This product is designed for opening and supporting top-opening cabinet doors.
© Készítette: Kvantum Rendszerház